成果信息
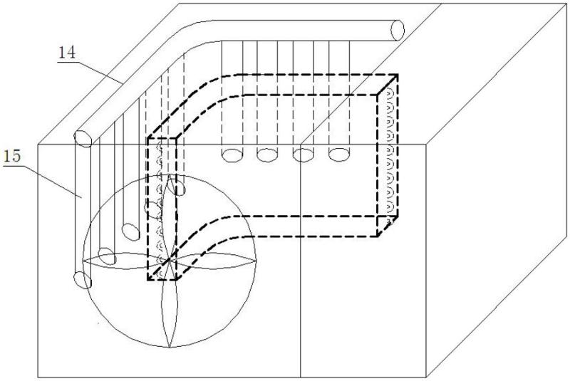
(1)本发明利用小型空压机压缩空气产生的高温高压的空气来对室外换热器除霜,利用产生的空气射流带走室外换热器的水滴达到了延缓结霜的效果,大大缩短了化霜的时间,进一步提高了制热效率。 (2)本发明喷发装置采用扩散型狭缝喷口,两侧强大的气流能形成一道无形的空气幕,大大加速了霜层的溶解,提高了系统运行效率。 (3)本发明采用了独立的热空气流路除霜,使得空气源热泵的制冷剂管路大大简化,而空气即使泄露也不会污染环境,所以本空气源热泵比传统空气源热泵更加环保。)
背景介绍
为使空气源热泵高效安全的运行,需要解决好其在冬季运行时室外换热器表面结霜的问题。针对结霜和除霜问题,国内外做了大量的研究工作,目前,空气源热泵常规的除霜方法有逆循环除霜和热气旁通除霜。逆循环除霜的能源来源于压缩机和室内空气,故在除霜过程中不能对室内空气进行供热,且能量损耗较大,除霜时间较长,四通阀的频繁地进行换向导致压缩机易于损坏和空气源热泵系统的运行不稳定;热气旁通除霜的能量全部由压缩机提供,故其能量损耗比较大,且所需的除霜时间要比逆循环除霜方式长。上述方法还存在一个问题就是使得制冷剂管路更加复杂,制冷剂泄露危险加大。)
应用前景
/)
